Търговски обект с лице на главен Булевард в модерен жилищен комплекс в кв. Смирненски.

Пловдив, Смирненски
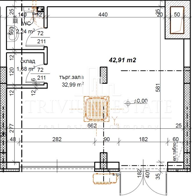
  • Магазин
  • Площ: 52 m2
  • Обява ID: 16522
  • Стаи: 3
  • Спални: 0
  • Етаж: 1 от 13
  • Цена на кв.м : 3200 €
  • Година на строителство: 2026
Описание

Агенция Trivium Estate предлага за продажба търговски обект в модерен жилищен комплекс в кв. Смирненски.

🔹 Площ: 51 кв.м;

🔹 Локация: Партерно ниво с лице към главен Булевард – отлична видимост и достъпност;

🔹 Статут: Магазин, подходящ за различни видове търговска дейност, шоурум, офис или представителство

*Цените са без ДДС

📈 Идеален имот за инвестиция или собствен бизнес!

TRIVIUM ESTATE предлага безплатно съдействие при кредитиране. 

За повече информация и огледи:

Отговорен консултант: Ивайло Райков

Реф.№ 16522

Публикувано от
Ивайло Райков
Ивайло Райков
i.raykov@trivium.bg
Най-горе