ДВУСТАЕН АПАРТАМЕНТ В НОВА СГРАДА С АКТ 14 – РАЙОН „ТРИМОНЦИУМ“, ПЛОВДИВ

Пловдив, Център
  • 2-стаен
  • Площ: 81 m2
  • Обява ID: 16651
  • Стаи: 2
  • Спални: 1
  • Етаж: 6 от 11
  • Цена на кв.м : 2309 €
  • Година на строителство: 2026
Описание

Агенция TRIVIUM ESTATE представя:

ДВУСТАЕН АПАРТАМЕНТ В НОВА СГРАДА С АКТ 14 – РАЙОН „ТРИМОНЦИУМ“, ПЛОВДИВ

Предлагаме на Вашето внимание двустаен апартамент в новострояща се жилищна сграда (Акт 14), разположена на изключително комуникативна и престижна локация – срещу търговски център Grand, в близост до хотел „Тримонциум“, район Каменица 1.


Основни характеристики:

Етаж: 6-ти

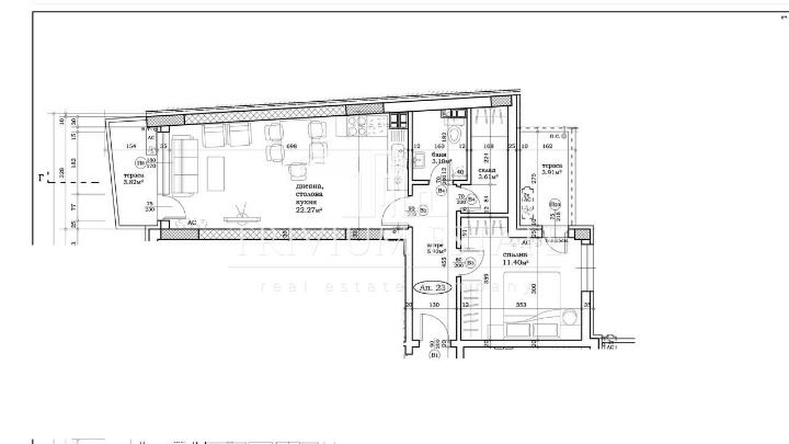
Обща площ: 81,33 кв.м

Изложение: запад / изток

Статут: апартамент

Разпределение:

✓ входно антре

✓ просторна дневна с трапезария и кухненски бокс – 22,27 кв.м

✓ спалня – 11,40 кв.м

✓ баня с тоалетна

✓ склад / килер

✓ две тераси

Предимства на имота:

Дневната зона е с западно изложение и гледка към ул. „Петко Д. Петков“, осигуряваща отлична естествена светлина. Спалнята е с източно изложение и гледка към вътрешния двор, което гарантира тиха и спокойна среда за пълноценна почивка.

Функционалното разпределение, доброто изложение и VIP локацията правят имота изключително подходящ както за лично ползване, така и за инвестиция с висока доходност и отлична ликвидност.

За сградата:

Сградата е проектирана и изпълнена по съвременни стандарти за качество и комфорт, с вложени висок клас материали:

✓ модерна фасадна облицовка

✓ ефективна топло- и хидроизолация

✓ петкамерна PVC дограма

✓ стилно завършени общи части с декоративни мазилки

✓ автоматично осветление

✓ тих хидравличен асансьор

На разположение на собствениците:

✓подземен паркинг с отлична осветеност

✓ гаражи и паркоместа с топла връзка към жилищата

✓ контролиран достъп

Локация:

Жилищната сграда се намира в район Каменица 1 – утвърден и предпочитан квартал с отлично развита инфраструктура. В непосредствена близост са:

✓ търговски център Grand

✓ супермаркети, магазини и заведения

✓ училища и детски градини

✓ аптеки и медицински центрове

✓ спирки на градски транспорт

Локацията осигурява бърз достъп до центъра на Пловдив, както и до основни булеварди и изходи на града.


Допълнителни възможности:

Възможност за закупуване на гараж в подземния паркинг

Възможност за закупуване и на съседен тристаен апартамент


TRIVIUM ESTATE предлага безплатна консултация с нашия кредитен консултант и съдействие при кредитиране. 


За повече интересни оферти и информация, харесайте или се абонирайте за нашите канали: 

FB: https://www.facebook.com/share/15sHFtrVWj/?mibextid=wwXIfr 

Instagram: https://www.instagram.com/triviumplovdiv/ 

TikTok: https://www.tiktok.com/@triviumestate?_t=ZN-8soOStpMjeI&_r=1 

YouTube: http://www.youtube.com/@triviumestate 

Или посетете нашият сайт: 

https://trivium.bg/ 


Отговорен консултант: Айваз Рустем

Реф. номер 16651

Публикувано от
Айваз Рустем
Айваз Рустем
a.rustem@trivium.bg
Най-горе