Агенция TRIVIUM ESTATE представя:
Апартамент за продажба в Пловдив, кв. Смирненски – бутикова сграда до Гребна база
Предлагаме апартамент за продажба в Пловдив, кв. Смирненски, разположен в малка бутикова сграда в непосредствена близост до Гребна база. Имотът съчетава лукс, спокойствие и отлична локация, създаваща усещане за ваканционно жилище в града.
Сграда и строителство
Сградата е проектирана като бутичен жилищен проект с лимитиран брой апартаменти, разположен сред еднофамилни къщи, които осигуряват отстояние, простор и ниска плътност на застрояване. Използвани са материали от най-висок клас, а общите части са сведени до едва 10%, което е сериозно предимство за бъдещите собственици. Проектът стартира през март, със срок на изпълнение 18 месеца.
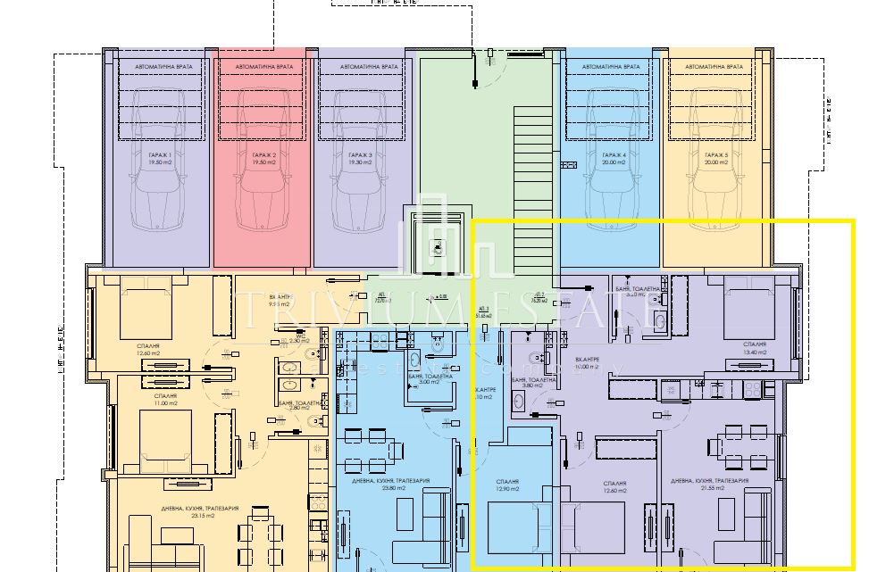
Площи и разпределение
Сградата предлага разнообразие от функционални жилища, включително апартаменти със собствен двор, които се вписват естествено в околната среда. Разпределенията са проектирани с фокус върху практичност, комфорт и максимално използване на жилищната площ.
Изложение, светлина и комфорт
Благодарение на ниското околно застрояване и отстоянията между сградите, апартаментите се отличават с отлична естествена светлина, усещане за простор и високо ниво на комфорт. Районът предлага тиха и зелена среда, рядко срещана в рамките на града.
Локация и инфраструктура
Имотът се намира в един от най-желаните райони на Пловдив – в непосредствена близост до Гребна база и ул. „Парк Отдих и Култура“. В съседство се изгражда спортен център с басейн, а автобусна спирка е разположена на няколко крачки от сградата. Допълнително предимство е одобреният от общината проект за цялостна реконструкция на улицата, включващ нови ВиК мрежи, асфалтиране, тротоари и спирки.
Състояние и потенциал
Проектът е в начален етап на строителство и предлага отлична възможност за покупка в ранен етап, което го прави изключително подходящ за инвестиция. Комбинацията от локация, качество и ограничен брой жилища гарантира добра доходност при дългосрочен наем и устойчив ръст на стойността във времето.
Подходящ за…
Свържете се с нас
Свържете се с екипа на TRIVIUM ESTATE за повече информация, актуални наличности и професионална консултация. С удоволствие ще съдействаме при избора на най-подходящия имот и организиране на оглед.
TRIVIUM ESTATE предлага безплатна консултация с нашия кредитен консултант и съдействие при кредитиране.
За повече интересни оферти и информация, харесайте или се абонирайте за нашите канали:
FB: https://www.facebook.com/share/15sHFtrVWj/?mibextid=wwXIfr
Instagram: https://www.instagram.com/triviumplovdiv/
TikTok: https://www.tiktok.com/@triviumestate?_t=ZN-8soOStpMjeI&_r=1
YouTube: http://www.youtube.com/@triviumestate
Или посетете нашият сайт:
https://trivium.bg/
Отговорен консултант: Айваз Рустем
Реф. номер 16721