Двустаен за Инвестиция ВМИ

Пловдив, област,
  • 2-стаен
  • Площ: 69 m2
  • Обява ID: 15602
  • Стаи: 2
  • Спални: 1
  • Етаж: 5 от 7
  • Цена на кв.м : 2500 €
  • Година на строителство: 2026
Описание

Агенция за недвижими имоти Тривиум Естейт предлага:

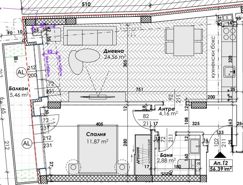
Двустаен апартамент в строеж със срок за довършване до края на 2025 г.

КЛЮЧОВА ЛОКАЦИЯ - СРЕЩУ МЕДИЦИНСКИ УНИВЕРСИТЕТ!!!

Възможност за дългосрочен наем от 750 евор на месец.

Към апартамента се предлага и подземно паркомясто на стойност 30 000евро.


Правилни форми на помещенията , просторна всекидневна и спалня.

Инвеститор с над 30 години опит в строителството и изградена репутация за лукс и качество.


За повече информация:

Самуил Спасов

0896 87 89 33





Публикувано от
Самуил Спасов
Самуил Спасов
ceo@trivium.bg
Най-горе