Двустаен апартамент в строеж на ул. Рая в кв. Смирненски.

Пловдив, Смирненски
  • 2-стаен
  • Площ: 65 m2
  • Обява ID: 15620
  • Стаи: 2
  • Спални: 1
  • Етаж: 2 от 10
  • Цена на кв.м : 1470 €
  • Година на строителство: 2027
Описание

TRIVIUM ESTATE има удоволствието да Ви предложи за продажба двустаен апартамент, разположен в кв. Христо Смирненски, гр. Пловдив.

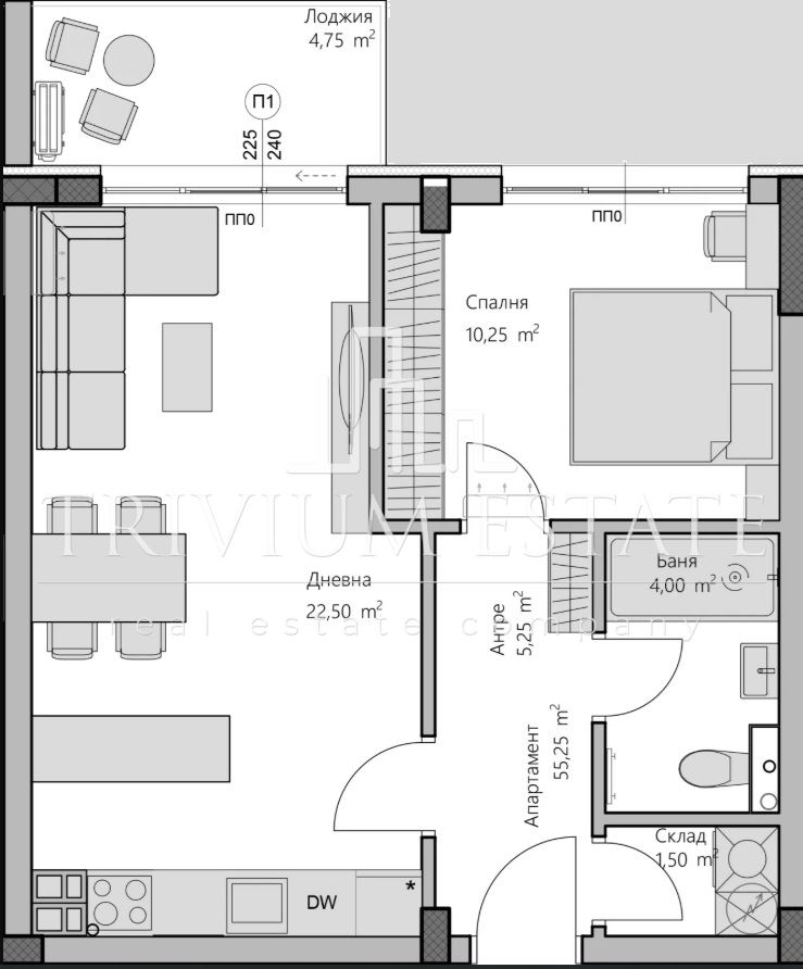
📐 Площ: 65 кв.м

📌 Разпределение:

  • Преддверие
  • Всекидневна
  • Спалня
  • Санитарен възел
  • Склад
  • Тераса
  • Изложение: Север

🏗️ Сградата е проектирана с фокус върху съвременния градски начин на живот – с функционално разпределение, добър достъп на естествена светлина и оптимална площ на помещенията.

🔧 Фасадна система:

Модерна вентилируема фасада с алуминиеви композитни панели (еталбонд) в два контрастни цвята. Предимства:

  • Висока енергийна ефективност
  • Защита от атмосферни влияния
  • Лесна поддръжка
  • Актуална визия с дълготраен ефект

🌳 Озеленяване и общи части:

Предвидени са зони за отдих, професионално оформени зелени площи и детски площадки, създаващи комфортна жилищна среда.

📍 Локация:

Спокоен, но комуникативен район с бърз достъп до булеварди, търговски обекти, училища и паркове.

🚗 Допълнителни възможности:

  • Подземни и надземни паркоместа
  • Гаражи
  • Гъвкави схеми на плащане
  • Налични и други двустайни и тристайни апартаменти в сградата

🗓️ Очаквано въвеждане в експлоатация: 2027 г.

📞 За повече информация и оглед:

Ивайло Райков – отговорен консултант

📌 Реф. номер: 15620

💬 TRIVIUM ESTATE предлага безплатно съдействие при кредитиране.

📱 За още оферти и актуални проекти, последвайте ни:

Facebook | Instagram | TikTok | YouTube

Публикувано от
Ивайло Райков
Ивайло Райков
i.raykov@trivium.bg
Най-горе