✨ ОФЕРТА – 3-СТАЕН АПАРТАМЕНТ ЗА ПРОДАЖБА В КВ. ТРАКИЯ✨

Пловдив, Тракия
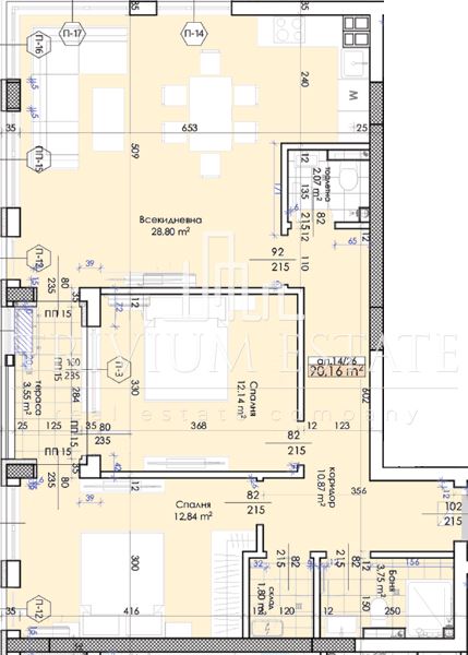
  • 3-стаен
  • Площ: 105 m2
  • Обява ID: 15787
  • Стаи: 3
  • Спални: 2
  • Етаж: 4 от 10
  • Цена на кв.м : 1486 €
  • Година на строителство: 2026
Описание

Агенция TRIVIUM ESTATE представя 3-стаен апартамент за продажба в Пловдив, квартал Тракия – отлично поддържано жилище с функционално разпределение, подходящо както за семейно жилище, така и за инвестиция с добра доходност. Имотът се намира в предпочитана локация с отлична инфраструктура, удобен транспорт и бърз достъп до ключови точки на града.

Сграда и строителство

Апартаментът е разположен в добре поддържана жилищна сграда с контрол на достъпа и общи части в много добро състояние. Районът е спокоен и зелен, което осигурява комфортна жилищна среда и усещане за уют. Около сградата има свободни пространства и възможности за паркиране.

Площи и разпределение

Имотът е с чиста площ от 105 кв.м., разположен на 4-ти етаж, с практично и удобно разпределение:

✓ Просторен и светъл хол с възможност за обособяване на кът за отдих

✓ Отделна кухня с трапезария, подходяща за семейни събирания

✓ Две самостоятелни спални, осигуряващи спокойствие и лично пространство

✓ Баня с тоалетна

✓ Широко входно антре с място за съхранение

Разпределението позволява оптимално използване на площта и създава усещане за простор.

Изложение, светлина и комфорт

Жилището е приятно осветено с естествена светлина, което допринася за по-ниски разходи и комфортна атмосфера през целия ден ☀️ Пространствата са добре балансирани, създаващи усещане за уют и функционалност.

Локация и инфраструктура

Квартал Тракия е сред най-търсените райони за покупка на имот в Пловдив 🏙️ В непосредствена близост се намират:

✓ търговски обекти и супермаркети

✓ училища и детски градини

✓ спирки на градски транспорт

✓ зелени площи и зони за отдих

Локацията е изключително подходяща за постоянно живеене, както и за дългосрочно или краткосрочно отдаване под наем.

Състояние и потенциал

Апартаментът е в добро състояние и готов за нанасяне, без необходимост от сериозни ремонти. Имотът предлага отличен потенциал за инвестиция, благодарение на търсената локация, функционалната площ и стабилния наемен пазар в района.

Подходящ за…

✓ 👨‍👩‍👧‍👦 семейства, търсещи комфортно жилище

✓ 💼 млади професионалисти, работещи в града

✓ 📈 купувачи, търсещи имот с добра възвръщаемост и доходност от наем

Свържете се с TRIVIUM ESTATE, за да получите повече информация и да организираме оглед в удобно за вас време 🤝

TRIVIUM ESTATE предлага безплатна консултация с нашия кредитен консултант и съдействие при кредитиране.

📞 Отговорен консултант: Айваз Рустем

📌 Реф. номер: 15787

🌐 За повече оферти и информация:

📘 Facebook

📸 Instagram

🎵 TikTok

▶️ YouTube

🌐 Нашият сайт

Публикувано от
Айваз Рустем
Айваз Рустем
a.rustem@trivium.bg
Най-горе