Елегантна самостоятелна къща за продажба в Белащица

Пловдив, област, с.Белащица
  • Къща
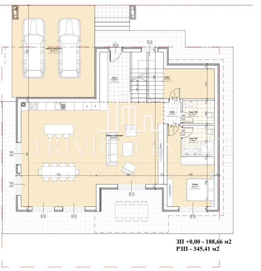
  • Площ: 346 m2
  • Обява ID: 15792
  • Стаи: 5
  • Спални: 4
  • Етаж: 0 от -999
  • Цена на кв.м : 1445 €
  • Година на строителство: 2025
Описание

Описание

Агенция TRIVIUM ESTATE представя:

🏡 Елегантна самостоятелна къща за продажба в Белащица

📍 Разположена само на няколко минути от Пловдив, в тиха и озеленена зона с престижни имоти и отлична инфраструктура.

🔸 Разгъната застроена площ: 346 кв.м

🔸 Дворно място: 371,34кв.м– равен и озеленен терен, подходящ за изграждане на басейн, барбекю зона или детски кът

🔸 Пред акт 14 , АКТ 16 се очаква до 2026 май месец .

🔸 Две покрити паркоместа

🔸 Септична яма (с възможност за бъдещо присъединяване към канализация, при наличие в района)

🔸 Строителство с високо качество – модерна архитектура, здраво изградена конструкция, големи френски прозорци и светли помещения

🚪 Вътрешно разпределение с възможност за адаптация според нуждите на бъдещите собственици – просторни дневни, няколко спални, санитарни помещения на всеки етаж и складови площи.

💡 Гъвкава схема на плащане – възможност за индивидуално договаряне с клиента. Цената е валидна до издаване на Акт 16.

🌳 Предимства на локацията:

✔️ Асфалтиран път до имота

✔️ Чист въздух и спокойствие, в подножието на Родопите

✔️ Бърз достъп до центъра на Пловдив

✔️ Престижно и търсено място за постоянно живеене

✔️ В близост до спирки на градски транспорт, училища, детски градини и магазини

✔️ 560 кв.м парцел 

✔️371,34кв.м двор

✔️РЗП 345,41 кв.м




🎯 Имот, подходящ както за комфортно семейно обитаване, така и за дългосрочна инвестиция.

📞 Свържете се с нас за оглед и допълнителна информация!

 

TRIVIUM ESTATE предлага безплатна консултация с нашия кредитен консултант и съдействие при кредитиране. 

📞 Свържете се с нас за оглед и допълнителна информация!


Отговорен консултант: Валери Петров

Реф. номер : 15792

Публикувано от
Валери Петров
Валери Петров
v.petrov@trivium.bg
Най-горе